Uma descoberta impressionante emerge das escavações na Regio IX de Pompeia: um dos maiores e mais elaborados complexos termais privados já encontrados na cidade, integrado a uma grandiosa sala de banquetes. Localizada na insula 10, a domus revela detalhes fascinantes sobre a vida cotidiana da elite romana e o uso estratégico desses espaços para demonstrar poder, cultura e prestígio social. Saiba mais neste artigo.
Índice
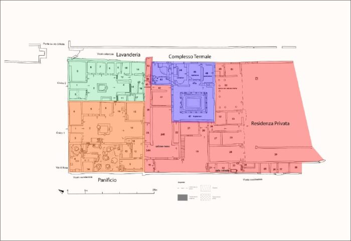
Um Complexo Termal Excepcional
O complexo termal, composto por salas aquecidas (calidarium), mornas (tepidarium) e frias (frigidarium), além de um vestiário (apodyterium), podia acomodar até 30 pessoas, evidenciado pelas bancadas presentes no local.

O destaque é a sala fria, organizada em torno de um peristilo – uma grande área porticada de 10 por 10 metros – com uma piscina central que impressionava os convidados pela grandiosidade.

Essa estrutura, conectada diretamente a um triclinio (sala de banquete conhecida como “salão negro”), reforça o papel da domus como palco de eventos sociais. Inspirada em tradições gregas, a decoração e a arquitetura buscavam transportar os visitantes para um ambiente de erudição e cultura, enquanto a função das termas era tanto de relaxamento quanto de integração social.
A Casa como Palco de Poder e Prestígio
Os banquetes realizados nesse tipo de domus iam muito além do simples entretenimento. Eram oportunidades para o proprietário consolidar sua posição social, angariar votos ou promover alianças políticas. A grandiosidade dos eventos, com refeições suntuosas e momentos de lazer nas termas, tinha o objetivo de impressionar e cativar os convidados.

A decoração da casa, com afrescos representando temas como a Guerra de Troia e cenas atléticas, reforçava essa atmosfera de sofisticação e cultura. O peristilo, com sua grande piscina central, evocava a ideia de um ginásio grego, conferindo ao ambiente uma aura de exclusividade e refinamento.


Técnicas Inovadoras na Preservação
A escavação do peristilo foi realizada com técnicas inovadoras que permitiram acessar o pavimento sem desmontar as partes instáveis do colonnato. Uma estrutura temporária de suporte protegeu a trabeação (estrutura horizontal sustentada pelas colunas) e garantiu a estabilidade até a conclusão de futuros projetos de restauração.
A entrada principal da domus, localizada ao sul, levava a um amplo peristilo, em torno do qual se organizavam os diversos ambientes da casa. Um oecus coríntio (sala decorada com colunas) apresentava frescos com cenas de natureza morta, como caça e pesca, reforçando o papel da domus como cenário de opulência e hospitalidade.
Uma Janela para o Passado
Essa descoberta em Pompeia não apenas revela detalhes da vida luxuosa da elite romana, mas também reforça o papel das casas como espaços de interação social e demonstração de poder. Cada elemento – das termas à decoração – era cuidadosamente planejado para impressionar os convidados e deixar uma marca duradoura em sua memória.

O trabalho arqueológico contínuo no local promete trazer mais informações sobre essa extraordinária domus e o universo cultural de Pompeia antes da devastadora erupção do Vesúvio em 79 d.C.
O vídeo abaixo mostra mais detalhes sobre a descoberta em Pompeia:
Leia também: Roteiro de 3 dias em Sorrento
Gostou da dica? Reservando através dos nossos links você apoia o Brasil na Italia e nos ajuda a continuar compartilhando conteúdos como este – sem pagar nada a mais por isso.
RESERVE SUA ACOMODAÇÃO AGORA
Você encontra as melhores ofertas e ainda colabora com o nosso site. Obrigada!
GETYOURGUIDE: RESERVE TRANSFERS E TOURS ONLINE
Reserve transfers, tours e excursões na Italia e no mundo com a nossa parceira Get Your Guide
CIVITATIS: RESERVE PASSEIOS E DESLOCAMENTOS
PRECISA DE INTERNET NA VIAGEM PARA O EXTERIOR?
Ganhe 5% de desconto com a Holafly com o código BRASILNAITALIA na hora de fazer sua eSIM de viagem